一篇文章让你看懂常用消防阀门工作原理
一、阀门概论
1、概念
阀门:用以控制流体流量、压力和流向的装置简称阀门。
被控制的流体可以是液体、气体、气液混合体或固液混合体。阀门通常由阀体、 阀盖、阀座、 启闭件(阀瓣、塞体、闸板、蝶板和隔膜等)、驱动机构(阀杆和带动它运动的阀门驱动装置)、密封件(填料、垫片等)和紧固件等组成。阀门的控制功能是依靠驱动机构或流体驱使启闭件升降、滑移、旋摆或回转运动以改变流道面积的大小来实现的。
2、阀门的主要参数
pn 公称压力(允许流体通过的最大的压力)
dn 公称直径
tn 温度范围(允许流体的温度范围)
3、阀门使用前的检查
检查项目包括:
1)阀体内外表面有无砂眼、裂纹等缺陷;
2)阀座与阀体接合是否牢固,阀芯与阀座是否吻合,密封面有无缺陷;
3)阀杆与阀芯连接是否灵活可靠、阀杆有无弯曲,螺纹有无损坏、腐蚀;
4)填料、垫圈是否老化损坏;
5)阀门开启是否灵活等。
阀门使用过程中常出现的问题
1)与管道连接处的法兰、螺纹泄漏;
2)填料涵泄漏、腰垫泄漏及阀杆开不动;
3)阀芯与阀座间关不严形成内泄漏
4、阀门的应用
阀门在工业生产、生活的各行各业中都有非常广泛的运用,是生活用水管道、工业流体管道必不可少的装置。小到家庭自来水管道,大到三峡大坝、秦山核电站,甚至太空的神舟系列宇宙飞船、国际空间站都有阀门在中间起在至关重要的作用。有资料显示,在100万千瓦的核电站,阀门的价值要占核电站总投资的5%到10%,后期阀门维修维护的费用要占核电站维护成本的50%,可见阀门的重要性。
二、常用消防阀门工作原理介绍
常用的消防阀门有闸阀、截止阀、节流阀、仪表阀、柱塞阀、球阀、蝶阀、止回阀、遥控浮球阀、电磁阀,减压阀 、过滤器、湿式报警阀等。
常用阀门工作原理介绍,如下:
(一)闸阀
闸阀是一种最常见的启闭阀,利用闸板(即启闭件,在闸板中启闭件称为闸板或闸门,闸座称为闸板座)来接通(全开)或截断(全关)管路中的介质。它不允许作为截流用,使用中应避免将闸板微量开启,因高速流动的介质的冲蚀会加速密封面的损坏。双德闸板在垂直于闸门座通道中心线的片面作为升降运动,象闸门一样截断管路中的介质,故称做闸阀。
闸阀的种类 ,按密封面配置可分为楔式闸板式闸阀和平行闸板式闸阀 , 楔式闸板式闸阀又可分为:单闸极式、双闸板式和弹性闸板式;平行闸板式闸阀可分为单闸板式和双闸板式。按阀杆的螺纹位置划分,可分为明杆闸阀和暗杆闸阀两种。
工作原理
转动手轮,通过手轮与阀杆的螺纹的进、退,提升或下降与阀杆连接的阀板,达到开启和关闭的作用。

闸阀的优点:
1、流体阻力小 , 密封面受介质的忡刷和侵蚀小。
2、开闭较省力。
3、介质流向不受限制 , 不扰流、不降低压力。
4、形体简单 , 结构长度短,制造工艺性好,适用范围广。
闸阀的缺点:
1、密封面之间易引起冲蚀和擦伤,维修比较困难。
2、外形尺寸较大,开启需要一定的空间,开闭时间长。
3、结构较复杂。
(二)截止阀
截止阀(stop valve,globe valve)的启闭件是塞形的阀瓣,密封面呈平面或锥面,阀瓣沿阀座的中心线作直线运动。阀杆的运动形式,(通用名称:暗杆),也有升降旋转杆式,(通用名称:明杆)截止阀是指关闭件(阀瓣)沿阀座中心线移动的阀门。 根据阀瓣的这种移动形式,阀座通口的变化是与阀瓣行程成正比例关系。由于该类阀门的阀杆开启或关闭行程相对较短,而且具有非常可靠的切断功能,又由于阀座通口的变化与阀瓣的行程成正比例关系,非常适合于对流量的调节。因此,这种类型的截流截止阀阀门非常适合作为切断或调节以及节流用。
工作原理
截止阀,也叫截门,是使用最广泛的一种阀门,它之所以广受欢迎,是由于开闭过程中密封面之间摩擦力小,比较耐用,开启高度不大,制造容易,维修方便,不仅适用于中低压,而且适用于高压。
截止阀的闭合原理是,依靠阀杠压力,使阀瓣密封面与阀座密封面紧密贴合,阻止介质流通。
截止阀只许介质单向流动,安装时有方向性。截止阀的结构 长度大于闸阀,同时流体阻力大,长期运行时,密封可靠性 不强。
优点
1、结构简单,制造和维修比较方便。
2、工作行程小,启闭时间短。
3、密封性好,密封面间磨擦力小,寿命较长。
4、 截止阀阀体的结构形式有直通式、直流式和直角式。直通式是最常见的结构,但其流体的阻力最大。直流式流体阻力较小,多用于含固体颗粒或粘度大的流体。直角式阀体多采用锻造,适用于较小通经、较高压力的的截止阀。
5、在开闭过程中密封面的摩擦力比闸阀小,耐磨。
6、通常只有一个密封面,制造工艺好,便于维修。
缺点
1、流体阻力大,开启和关闭时所需力较大。
2、不适用于带颗粒、粘度较大、易结焦的介质。
3、调节性能较差。
4、波纹管密封截止阀采用波纹管密封的设计,完全消除了普通阀门阀杆填料密封老化快易泄露的缺点,波纹管截止阀不但提高了使用能源效率,增加生产设备安全性,减少了维修费用及频繁的维修保养,还提供了清洁安全的工作环境。
(三)节流阀
节流阀是通过改变节流截面或节流长度以控制流体流量的阀门。将节流阀和单向阀并联则可组合成单向节流阀。节流阀和单向节流阀是简易的流量控制阀,在定量泵液压系统中,节流阀和溢流阀配合,可组成三种节流调速系统,即进油路节流调速系统、回油路节流调速系统和旁路节流调速系统。节流阀没有流量负反馈功能,不能补偿由负载变化所造成的速度不稳定,一般仅用于负载变化不大或对速度稳定性要求不高的场合。
节流阀具有以下特点:
1、构造较简单,便于制造和维修,成本低。
2、调节精度不高,不能作调节使用。
3、密封面易冲蚀,不能作切断介质用。
(四)蝶阀
蝶阀又叫翻板阀,是一种结构简单的调节阀,同时也可用于低压管道介质的开关控制的方式工作中的阀门蝶阀是指关闭件(阀瓣或蝶板)为圆盘,围绕阀轴旋转来达到开启与关闭的一种阀,在管道上主要起切断和节流作用。蝶阀启闭件是一个圆盘形的蝶板,在阀体内绕其自身的轴线旋转,从而达到启闭或调节的目的。
优点
1、启闭方便迅速、省力、流体阻力小,可以经常操作。
2、结构简单,外形尺寸小,结构长度短,体积小,重量轻,适用于大口径的阀门。
3、可以运送泥浆,在管道口积存液体最少。
4、低压下,可以实现良好的密封。
5、调节性能好。
6、全开时阀座通道有效流通面积较大,流体阻力较小。
7、启闭力矩较小,由于转轴两侧蝶板受介质作用基本相等,而产生转矩的方向相反,因而启闭较省力。
8、密封面材料一般采用橡胶、塑料、故低压密封性能好。
9、安装方便。
10、操作灵活省力,可选择手动、电动、气动、液压方式。
缺点
1、使用压力和工作温度范围小。
2、密封性较差。
(五)球阀
启闭件(球体)由阀杆带动,并绕阀杆的轴线作旋转运动的阀门。利用亦可用于流体的调节与控制,其中硬密封v型球阀其v型球芯与堆焊硬质合金的金属阀座之间具有很强的剪切力,特别适用于含纤维、微小固体颗料等介质。
工作原理
球阀具有旋转90度的动作,旋塞体为球体,有圆形通孔或通道通过其轴线。球阀在管路中主要用来做切断、分配和改变介质的流动方向,它只需要用旋转90度的操作和很小的转动力矩就能关闭严密。球阀最适宜做开关、切断阀使用,但近来的发展已将球阀设计成使它具有节流和控制流量之用,如v型球阀。
优点
1.流体阻力小,全通径的球阀基本没有流阻。
2.结构简单、体积小、重量轻。
3.紧密可靠。它有两个密封面,而且目前球阀的密封面材料广泛使用各种塑料,密封性好,能实现完全密封。在真空系统中也已广泛使用。
4.操作方便,开闭迅速,从全开到全关只要旋转90°,便于远距离的控制。
5.维修方便,球阀结构简单,密封圈一般都是活动的,拆卸更换都比较方便。
6.在全开或全闭时,球体和阀座的密封面与介质隔离,介质通过时,不会引起阀门密封面的侵蚀。
7.适用范围广,通径从小到几毫米,大到几米,从高真空至高压力都可应用。
8.由于球阀在启闭过程中有擦拭性,所以可用于带悬浮固体颗粒的介质中。
缺点
加工精度高,造价昂贵,高温中不易使用,如管道内有杂质,容易被杂质堵塞,导致阀门无法打开
(六)减压阀
减压阀是通过调节,将进口压力减至某一需要的出口压力,并依靠介质本身的能量,使出口压力自动保持稳定的阀门。从流体力学的观点看,减压阀是一个局部阻力可以变化的节流元件,即通过改变节流面积,使流速及流体的动能改变,造成不同的压力损失,从而达到减压的目的。然后依靠控制与调节系统的调节,使阀后压力的波动与弹簧力相平衡,使阀后压力在一定的误差范围内保持恒定。
(七)止回阀
止回阀又称单向阀或逆止阀,其作用是防止管路中的介质倒流。水泵吸水关的底阀也属于止回阀类。启闭件靠介质流动和力量自行开启或关闭,以防止介质倒流的阀门叫止回阀。止回阀属于自动阀类,主要用于介质单向流动的管道上,只允许介质向一个方向流动,以防止发生事故。
止回阀属于一种自动阀门,其主要作用是防止介质倒流、防止泵及驱动电动机反转,以及容器介质的泄放。止回阀还可用于给其中的压力可能升至超过系统压的辅助系统提供补给的管路上。
(八)安全阀
工作原理
zsfg型雨淋阀组主要由水源控制阀(蝶阀)、雨淋阀、手动应急装置、自动滴水阀、排水球阀、供水侧压力表、控制腔压力表等组成。 当有火灾发生时,消防控制模块联动动作,打开电磁阀,通过控制腔的出口接通大气压,由于控制腔内进口的减压装置作用,使得控制腔内的压力急剧下降,当控制腔内的压力比供水压力低到一定值时,作用在阀盖底部向上的力大于杠杆作用在阀瓣上向下的力,雨淋阀的阀瓣被供水压力打开,则水流入系统侧进行灭火,控制腔内的压力表由装在保护区内的火灾探测系统同时也就是雨淋阀阀瓣的驱动系统控制,它可以是电气的、液压的(湿式)、气动的(干式)。
(九)信号阀
对于自动喷淋中,水流指示器前宜设信号阀。zsdf型消防信号蝶阀:用途:zsdf型消防信号蝶阀的顶部设有阀门启闭电信号装置,当阀门被误关闭25%(全开度的4/1)时,电信号装置便输出被误关闭的信号到消防控制中心。所以此蝶阀是消防自动喷水灭火系统的最佳配套产品。结构特点及工作原理:该蝶阀的电信号装置设计蜗杆、蜗轮驱动装置的顶部,并与阀杆直联传动,在精密全封闭的机电装置内,设有阀门开启度机械指示和进口电气元件及防锈机件。输出信号长期稳定可靠。
(十)湿式报警阀
只允许水单向流入喷水系统并在规定流量下报警的一种单向阀。
(十一)过滤阀
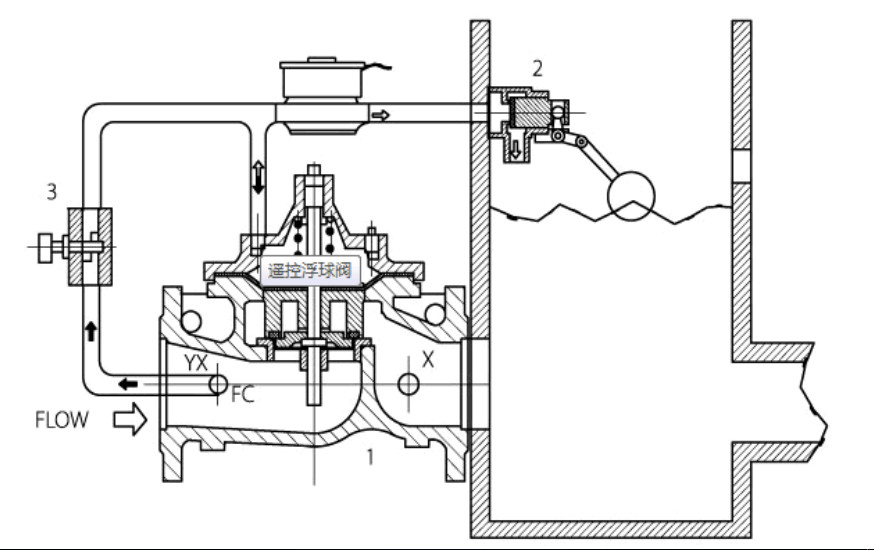
(十二)遥控浮球阀
遥控浮球阀结构
更多泵阀新技术,请观看flowtech泵阀创新产品发布会。
flowtech泵阀创新产品发布会是2018年第7届上海国际泵管阀展览会同期开设的100多场行业高峰论坛会议中的一场,覆盖化工、供排水、环保水处理、制药等行业。2018年第7届上海国际泵管阀展览会将于2018年5月31日-6月2日在上海国家会展中心举行,是目前国内最大规模的泵管阀展览会,能提供全产业链一站式解决方案。
原文链接

















